Specificaties

| Artikelnummer | BL282525N00223 |
|---|---|
| Fabrikant | Van Kooten |
| Dakbedekking | Optioneel |
| Behandeling Materiaal | Groen geïmpregneerd |
| Houtsoort | Vurenhout |
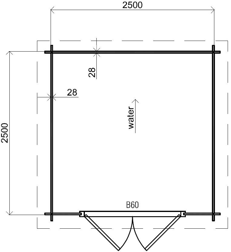
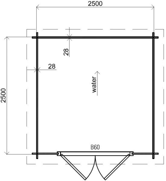
| Afmeting (LxB) | 250 x 250cm |
| Wandhoogte | 209 cm |
| Nokhoogte | 223 cm |
| Wanddikte | 28 mm |
| Garantie | 5 jaar |
| Gespiegeld op te bouwen | Ja |
| Daktype | Lessenaarsdak |
Omschrijving
Classicline Blokhut Limburg Geïmpregneerd 250x250 cm
De Classicline Blokhut Limburg 250x250 cm is een compacte en praktische houten blokhut die ideaal is als tuinberging, schuur of extra opslagruimte in de tuin. Dankzij de afmeting van 250x250 cm biedt deze blokhut voldoende ruimte voor het netjes opbergen van tuinmeubelen, tuingereedschap, fietsen en andere tuinartikelen, terwijl het formaat compact genoeg blijft voor vrijwel iedere tuin.
De blokhut is gemaakt van kwalitatief hout met 28 mm dikke wanddelen, wat zorgt voor een stevige en stabiele constructie. Hierdoor is de blokhut geschikt voor langdurig gebruik en goed bestand tegen verschillende weersomstandigheden. Het lessenaarsdak geeft de blokhut een moderne uitstraling en zorgt er tegelijkertijd voor dat regenwater efficiënt wordt afgevoerd.
Het hout van de blokhut is keteldruk (hogedruk) geïmpregneerd, waardoor het goed beschermd is tegen vocht, schimmel en houtrot. Dankzij deze behandeling heeft het hout de eerste jaren nauwelijks onderhoud nodig en is de blokhut direct geschikt voor plaatsing in de tuin.
De dubbele deur van dit model is voorbehandeld met een transparante impregneervloeistof. Om de deur goed beschermd te houden en de uitstraling mooi te behouden, adviseren wij deze na ongeveer één jaar over te schilderen of opnieuw te behandelen.
De Classicline Blokhut Limburg 250x250 cm is daarmee een uitstekende keuze voor wie op zoek is naar een compacte, duurzame en onderhoudsvriendelijke houten tuinberging. Perfect als praktische opbergoplossing en functionele toevoeging aan iedere tuin.
Verkrijgbaar bij Van Kooten Tuin en Buitenleven.

Anderen bekeken ook
* Stel hier uw vraag over het getoonde product. Voor een maatwerk oplossingen kunt u HIER een aanvraag indienen. Neem voor vragen over de levertijd en/of bezorging rechtstreeks contact op met onze verkoopadviseurs.






















