Specificaties

| Artikelnummer | BL283030B30223 |
|---|---|
| Fabrikant | Van Kooten |
| Dakbedekking | Optioneel |
| Behandeling Materiaal | Groen geïmpregneerd |
| Houtsoort | Vurenhout |
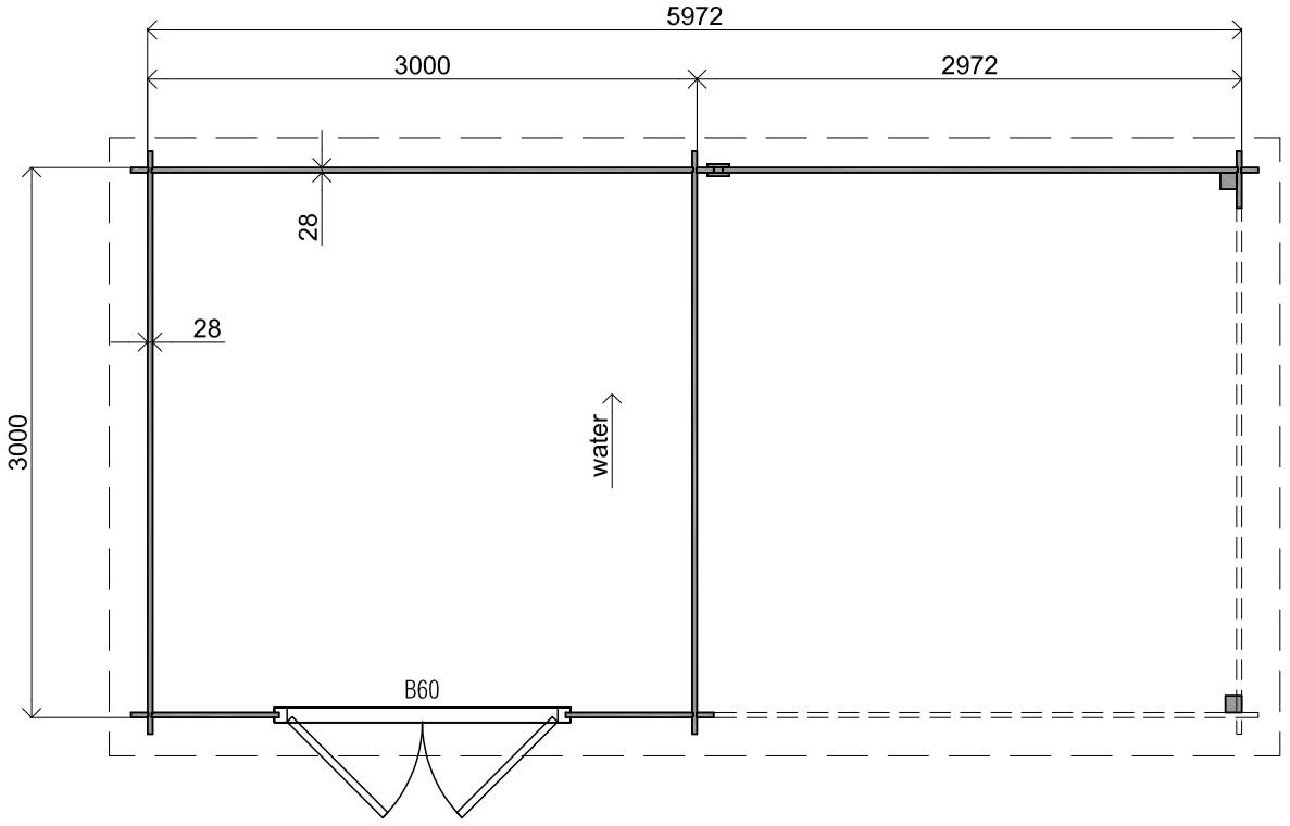
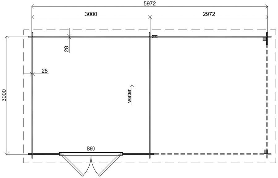
| Afmeting (LxB) | 600 x 300cm |
| Wandhoogte | 209 cm |
| Nokhoogte | 223 cm |
| Wanddikte | 28 mm |
| Garantie | 5 jaar |
| Daktype | Lessenaarsdak |
Omschrijving
Classicline Blokhut Overijssel Geïmpregneerd 600x300 cm met Overkapping
De Classicline Blokhut Overijssel 600x300 cm met overkapping is een ruime en veelzijdige houten blokhut die ideaal is als combinatie van tuinberging en overdekte buitenruimte. De blokhut beschikt over een afgesloten berging van 300x300 cm en is uitgebreid met een overkapping van 300x300 cm, waardoor de totale breedte uitkomt op 600 cm. Hierdoor heeft u niet alleen voldoende opbergruimte voor tuinmeubelen, tuingereedschap en fietsen, maar ook een ruime beschutte plek waar u bijvoorbeeld een loungeset, fietsen of haardhout droog kunt plaatsen.
De blokhut is vervaardigd uit kwalitatief hout met 28 mm dikke wanddelen, wat zorgt voor een stevige en stabiele constructie. Hierdoor is de blokhut geschikt voor langdurig gebruik en goed bestand tegen verschillende weersomstandigheden. Het lessenaarsdak geeft het geheel een moderne uitstraling en zorgt ervoor dat regenwater efficiënt wordt afgevoerd.
Het hout van de blokhut is keteldruk (hogedruk) geïmpregneerd, waardoor het goed beschermd is tegen vocht, schimmel en houtrot. Dankzij deze behandeling heeft het hout de eerste jaren nauwelijks onderhoud nodig en is de blokhut direct geschikt voor plaatsing in de tuin.
De ramen en deuren zijn sproei-geïmpregneerd, wat extra bescherming biedt tegen weersinvloeden. De dubbele deur van dit model is daarnaast voorbehandeld met een transparante impregneervloeistof. Om de deur optimaal beschermd te houden en de uitstraling mooi te behouden, adviseren wij deze na ongeveer één jaar opnieuw te behandelen of over te schilderen.
De Classicline Blokhut Overijssel 600x300 cm met overkapping is daarmee een uitstekende keuze voor wie op zoek is naar een praktische combinatie van opbergruimte en een ruime overdekte buitenplek. Ideaal voor het opbergen van tuinspullen én het creëren van een comfortabele plek om van de tuin te genieten.
Verkrijgbaar bij Van Kooten Tuin en Buitenleven.

Anderen bekeken ook
* Stel hier uw vraag over het getoonde product. Voor een maatwerk oplossingen kunt u HIER een aanvraag indienen. Neem voor vragen over de levertijd en/of bezorging rechtstreeks contact op met onze verkoopadviseurs.




























