Specificaties

| Artikelnummer | O1073678 |
|---|---|
| Fabrikant | Van Kooten |
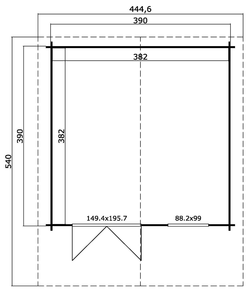
| Funderingsmaat | 390x390 cm |
| Modelserie | Van Kooten Floor |
| Incl. berging | Ja |
| Ramen | 4mm glas |
| Wandhoogte | 205 cm |
| Wanddikte | 40 mm |
| Pakket afmeting Ca. | 630x118x52 cm |
| Pakket gewicht Ca. | 1056 kg |
| Dakmaat | 445x540 cm |
| Dakoppervlak | 21,84 m² |
| Oversteek voorkant | 130 cm |
| Afmeting dubbele deur | 149,4x195,7 cm |
| Afmeting raam | 88x99 cm |
| EAN code | 4743329284879 |
Omschrijving

* Stel hier uw vraag over het getoonde product. Voor een maatwerk oplossingen kunt u HIER een aanvraag indienen. Neem voor vragen over de levertijd en/of bezorging rechtstreeks contact op met onze verkoopadviseurs.








